No.62 スリム感強調ダイニングキャビネット (木目全て縦方向)
Zoomお打ち合わせなどお気軽にお問い合わせください。
お電話でもお受けしております。(土日祝も承ります)
090-7845-4895
一戸建てご新築のお客様です。
リビングダイニングルームの壁面に、収納と飾ることのできるダイニングキャビネットをお探しでした。
マイデザインホームページをご覧になりお電話をいただいています。概略をお聞きし、おおよその費用もお電話でお答えしました。
オーダー家具専門店の自由自在
マイデザインはオーダー家具専門店なので特殊サイズ(異形)やイレギュラーサイズ(大小)を探されているお客様が多くご来店されます。
お部屋に合わせて使いやすい自由な仕様、サイズのご希望をお申し付けください。
デザインの自由な選択
数日後、千駄ヶ谷ショールームにご来店いただきお話しをお伺いしています。
展示製品をご覧いただき実際にサイズシュミレーションをし、上下扉、中央引出し、飾り空間のサイズを決定しました。
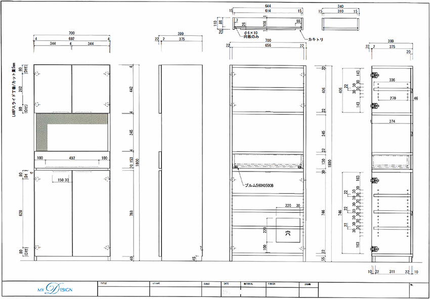
〈幅70cm奥行39,9cm高さ180cm〉
シンプルデザインをご希望でしたので、扉/引出しに手掛け凹加工をし、取手を表面から見えないようにしました。
木目の見え方は縦方向にしてスリム感を強調しています。






展示製品は豊富な樹種とナチュラル塗装
樹種はナラ材を選択されています。
マイデザイン千駄ヶ谷ショールーム1Fに展示しているナラ材オイル塗装アートフレームをご覧になられ、5年以上経過している経年変化をお気に入りなられました。

ナラ無垢材オイル塗装

ナラ無垢材オイル塗装

「お問い合わせ」から「お届け」迄の約60日の行程をご紹介します。(ゴールデンウィークが入り通常より日数を要しました)
①お電話お問い合わせ
②ご来店
③デザイン図面作成・ご確認
④お見積りのご提示
⑤ご契約
⑥製作図面作成・ご確認→壁面箇所修正必要
⑦お客様宅に現地確認
⑧製作図面修正・ご確認
⑨北海道旭川工場製作スタート
⑩北海道旭川工場にて製品チェック(マイデザイン)
⑪お届け・確認(マイデザイン)
お客様より経験豊富な住生活のお話しを多岐に渡りお聞かせいただき、大変貴重なそしてとても楽しいオーダー家具製作をさせていただきました。
また、ご親切にお知り合いの方々をご紹介いただきご購入いただきましたこと、心より感謝申し上げます。
メンテナンス等などで何かご要望がございましたら、サポートさせていただきますので何なりとお申し付けください。
末永くどうぞよろしくお願いいたします。


お問い合わせ
ご希望の素材や仕上げなどを入力すると、
オーダー時の大まかな金額を見ることができます
オーダーに関するご相談やご来店予約、
Zoomお打ち合わせなどお気軽にお問い合わせください
